Tout Technique

Service commercial

Notre équipe commerciale vous accompagne :

1. Analyse et conseil sur le choix des équipements

Nous vous accompagnons tout au long de votre projet en vous faisant bénéficier de notre expertise, afin de vous orienter vers des équipements adaptés à vos besoins et à votre activité.

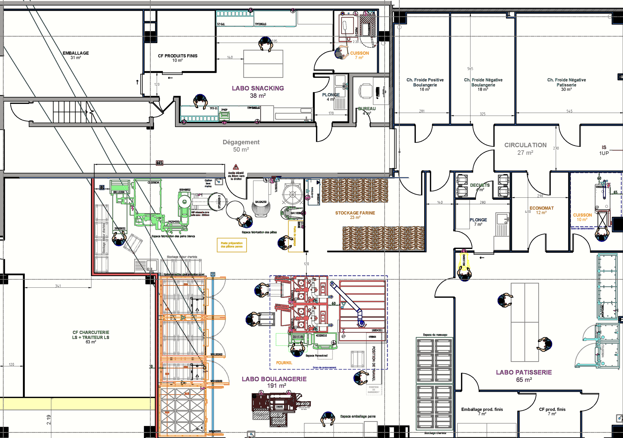
2. Projet d’implantation

Nous réalisons les plans de votre projet pour vous permettre de visualiser votre future organisation et d’optimiser vos espaces de travail.

3. Recherche financière

Tout Technique vous accompagne dans le montage de votre dossier et l’appuie auprès de ses partenaires financiers.

4. Installation

Toutes les installations de matériel neuf sont réalisées par nos propres équipes de techniciens : livraison, installation, mise en service, formation, service après-vente et suivi de garantie.

Besoin d'UN DEVIS ?

Remplissez ce formulaire et notre équipe reviendra vers vous afin de traiter votre demande.